PROYECTOS
EQUIPO
CONTACTO
PROYECTOS
EQUIPO
CONTACTO
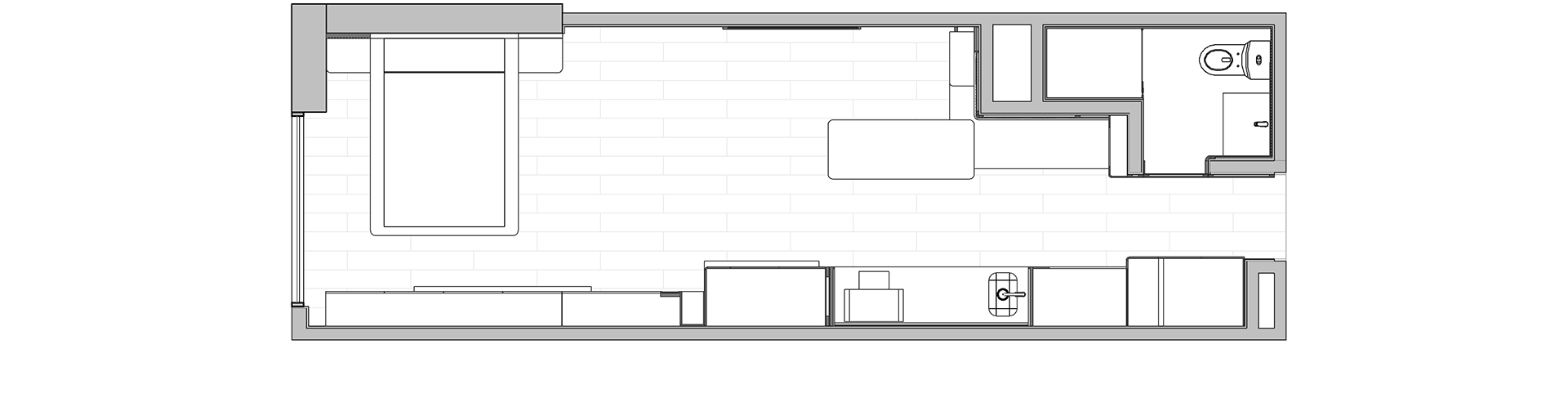
TIPO
REMODELACION
UBICACION
2023 - CHIA COLOMBIA
AREA
32 m2
EQUIPO
REGENERATIVO
ESTADO
CONCEPTO
PLANIMETRIA
↑
BACK TO TOP